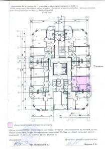
1-к. квартира, Осипенко, д.8 г.Сергиев Посад, ул.Осипенко, д.8. 6 этаж. Монолитно-кирпичный 17 этажный дом. Площадь 36.43 кв.м. Переуступка прав. Сдача дома 3 квартал 2012г. Хороший вид.
 
Роман г. Москва Осипенко Номер дома: 8 тел.: +7(926)5947345 e-mail:
Объявление подано: 12.03.2012 Просмотров - 234 Номер: 491656
|